房屋介紹
調整字體大小:
小
中
大
房屋資料
類 別:住宅
型 態:別墅
裝潢程度:暫無
帶 租 約:否
坪數說明
主 建 物:57.32坪
土地坪數:36.35坪
生活機能
近學校
近傳統市場
近便利商店
近公園綠地
近夜市近美食街
生活周邊
生活機能:近學校;近傳統市場;近便利商店;近公園綠地;近夜市;近美食街
屋況介紹
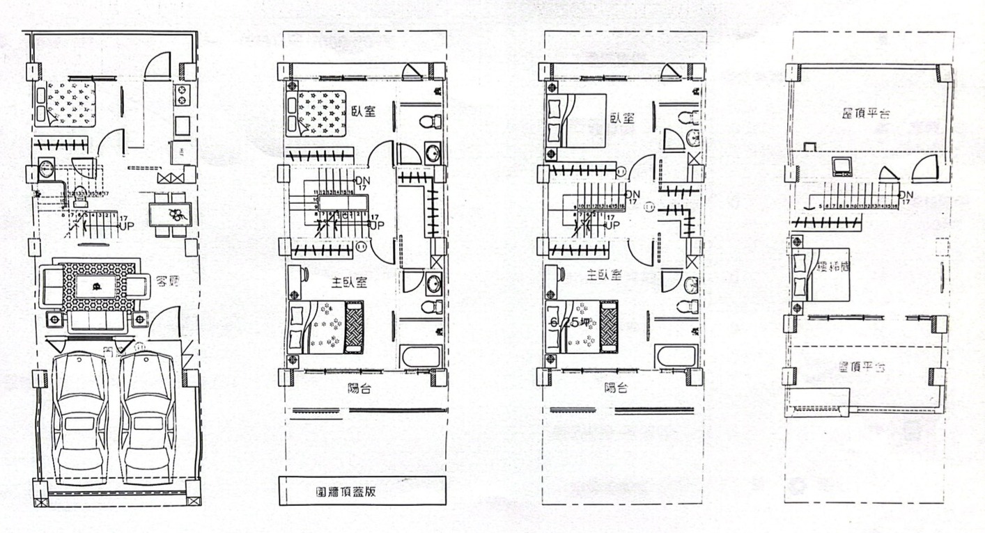
1.5M車庫可停雙車
2.有預留充電樁管路
3.全新未住
4.傳統格局.一樓客餐廳+孝親房
5.二樓+三樓皆為雙套房
6.頂樓有留衛浴管路
7.水塔旁預留太陽能管路
8.成交後建商保固一年
9.大社精華地段.全聯、果菜市場
10.每周三、六有大社夜市
11.5M路前有預留管制格柵用電路管線.由2~12號等戶自行決議是否加裝格柵
12.地坪26.92+5米道路持分9.43=36.35坪



地圖找房
|
10) 最近更新:





















11
2
1
21
6
15
12
12
3
3