房屋介紹
調整字體大小:
小
中
大
房屋資料
類 別:住宅
型 態:透天厝
裝潢程度:高檔裝潢
帶 租 約:否
法定用途:見使照
坪數說明
主 建 物:73.72坪
附屬建物:8.30坪
土地坪數:564.16坪
生活機能
生活周邊
路 面:4~6米路
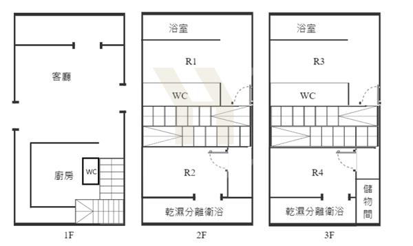
屋況介紹
青翠落雨松層層綠稻浪,和風金波浪稻穗壓彎腰
5大套房、綠意大餐廳、視野遼闊
咖啡輕食、休憩放鬆
投資自用皆宜



地圖找房
|
12) 最近更新:



















13
3
14
6
6
1
7
8
10
19