房屋介紹
調整字體大小:
小
中
大
房屋資料
類 別:住宅
型 態:透天厝
裝潢程度:高檔裝潢
帶 租 約:否
法定用途:見使照
坪數說明
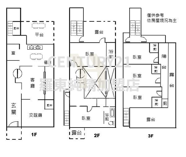
主 建 物:118.95坪
附屬建物:8.34坪
土地坪數:486.12坪
生活機能
生活周邊
路 面:4~6米路
屋況介紹
礁溪交流道、當代美學留白農舍 台灣知名建築師以簡馭繁設計新現代建築 挑高六米大氣派客廳、5房3廳8衛1室 搭配建築與空氣力學、冬暖夏涼、四季宜居



地圖找房
|
17) 最近更新:


















10
25
6
52
12
12
18
21
36
10