房屋介紹
調整字體大小:
小
中
大
房屋資料
類 別:住宅
型 態:透天厝
裝潢程度:高檔裝潢
帶 租 約:否
法定用途:見使照
坪數說明
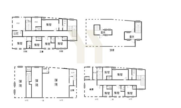
主 建 物:69.96坪
附屬建物:4.67坪
土地坪數:141.02坪
生活機能
生活周邊
路 面:10~12米路
屋況介紹
雙店面,使用坪數多一倍,臨路12米,大路邊,間間套房、店面、住家,一舉兩得。增建約70坪



地圖找房
|
19) 最近更新:














9
6
14
16
6
6
6
4
7
11